綾瀬市大上5丁目 新築戸建て 全1棟【仲介手数料無料】
【仲介手数料無料でご紹介可能です】
□■海老名市を中心に地域密着で営業している不動産会社です■□こちらの物件はファミリーマート 海老名東柏ヶ谷店まで447mにあります。駅まで徒歩12分と少し離れている物件です。新築戸建ての物件は、室内のレイアウトも自分好みに変更可能です。充実した住環境をお求めなら、綾瀬市の不動産を購入してはいかがでしょうか。当社では多種多様な不動産情報を取り扱っておりますので、まずはご連絡ください。
物件情報
物件動画
周辺施設
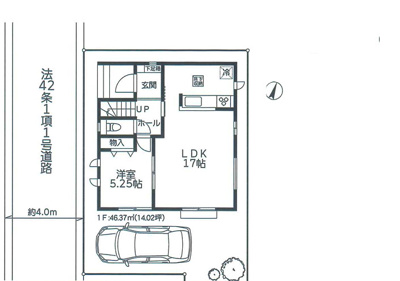
コメント【区画図】【仲介手数料無料でご紹介可能です】大樹不動産
綾瀬市大上5丁目 新築戸建て 全1棟【仲介手数料無料】 の物件概要
【新築一戸建】| 所在地 | 神奈川県綾瀬市大上5丁目25-2 | ||
|---|---|---|---|
| 交通 | |||
| 価格 | 4,490万円 | 築年月(築年数) | 2026年 5月 ( 予定 ) |
| 建物面積/坪数 | 96.05㎡/29.05坪 | 土地面積/坪数 | 92.48㎡/27.97坪 |
| 種別/構造 | 新築一戸建 / 木造 | 地目 | 宅地 |
| 備考 | 当社イチオシの物件の「綾瀬市大上5丁目 新築戸建て 全1棟【仲介手数料無料】」。ぜひ一度ご覧ください。近くにはファミリーマート 海老名東柏ヶ谷店(徒歩6分)がありちょっとした買い物に便利です。一生に一度のマイホーム探しは、ぜひ新築戸建てで。駅まで徒歩12分でアクセス可能です。ご希望に沿った一戸建てをご紹介致します。綾瀬市の相鉄本線さがみ野付近でマイホームの購入をお考えなら、お気軽にお問い合わせください。 | ||
| 取扱会社 |
|
||
※地図上に表示される物件の位置は付近住所に所在することを表すものであり、実際の物件所在地とは異なる場合がございます。
綾瀬市大上5丁目 新築戸建て 全1棟【仲介手数料無料】の販売物件情報






